曼哈頓的天際線
Manhattan Skyline
如果沒有建築的這道牆,畫作便沒有懸掛的地方。
空間與藝術的密不可分,
真正動人的空間,不只是視覺的精緻,
而是能在不知不覺中流露安全感與歸屬感,
觸動人心。
曼哈頓的天際線充滿幾何稜線,
Yvane總監捕捉屋主對成就感與品味的敏感度,
以簡約奢華為風格主軸,
創造心之所望的高度。
甫迎來第二個小孩的年輕醫師夫婦,
為有如身處曼哈頓的家湊成了「好」字,
日常的生活節奏伴隨著城市叢林,
成就動靜皆宜的四口之家。
_
大理石紋理的沉穩與金色線條的洗鍊,
勾勒出不張揚而精緻的生活語彙。
走廊的轉折、不過於擁簇的留白,
都是透過分毫調整所營造而成的居住節奏,
一步步引導我們進入家的深處,
詮釋了真正打動人的,
是來自看不見的細節的真理。
來自魯班公尺上的紅字,
暗藏古老的智慧與宇宙的秩序,
被巧妙融合於現代空間中,
帶來一種說不出口的舒適與和諧。
再微小的氣流,也在設計之中被妥善安排,
讓自然的風成為家的呼吸,
輕柔流動於日常的每個角落。
家的輪廓,從來不是堆砌出來的,
而是由對人、對情緒的體察與回應慢慢雕琢
成就一幅由心而生的藝術畫作。
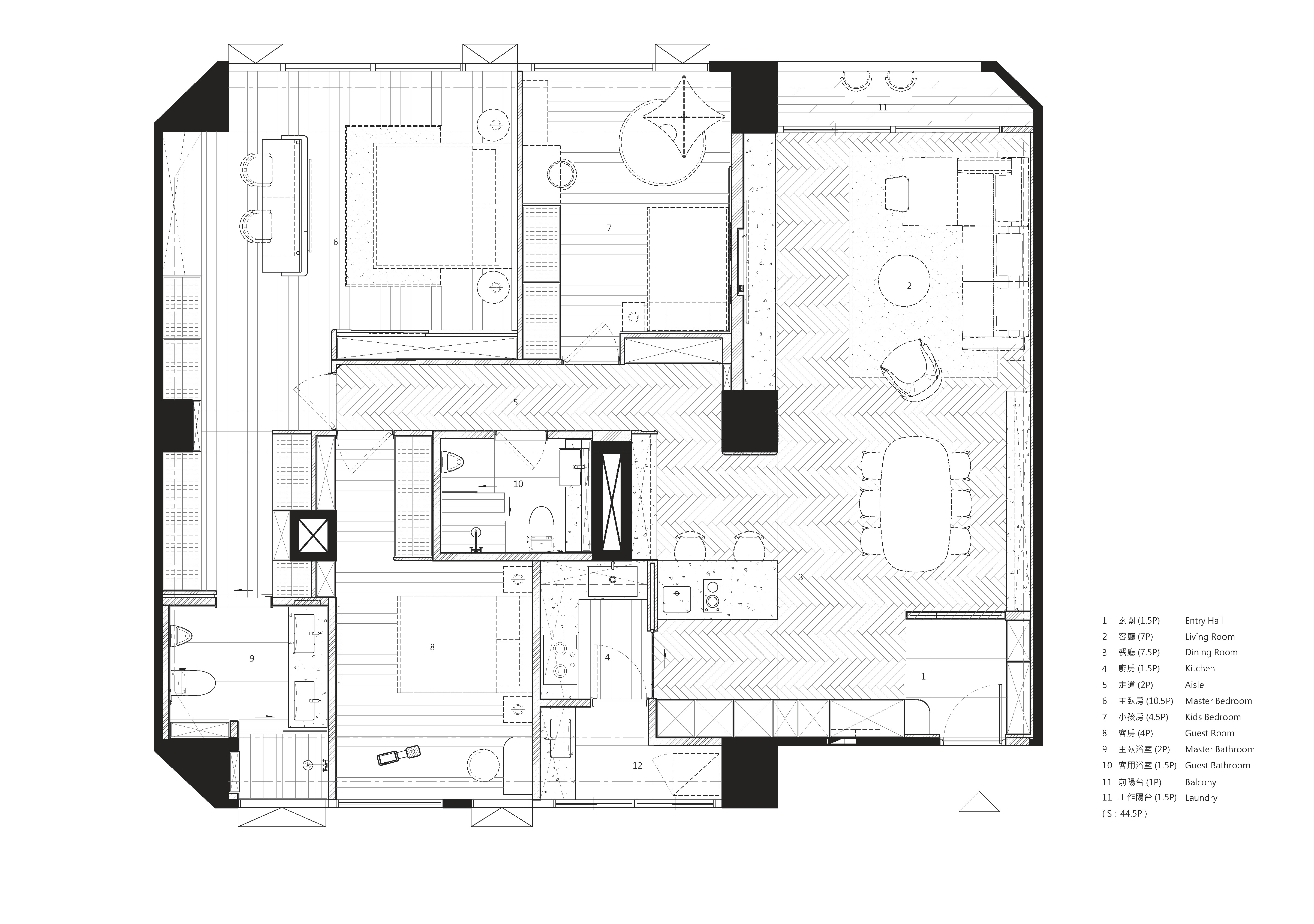
空間格局」44.5坪
客廳、餐廳、廚房、主臥室、主浴室、小孩房、客浴。
主要建材」
奢石、鋼刷木皮、特殊漆、木地板、系統櫃、大板磚


