風華隱現
Subtle Radiance Unveiled
「圓」的概念,源自日月;
神秘的古埃及人認為,圓是神賜予的神聖圖形。
而在家空間的範疇中,圓是和諧,是凝聚。
比鄰陶朱隱園與富邦美術館,
與世界首座垂直森林和大師名作為伴,
設計規劃不僅只於生活,
亦挾著藝術美學勾勒了家。
__
整體格局為公私區各半,
在公區,圓的語彙伴隨光帶,
象徵凝聚家庭的語彙滿盈室內。
餐廳圓頂蒼穹下,流線光軌,
如莫比烏斯環般無限迴旋亦更交織,
演繹家人之間的羈絆;
錐腳圓桌環繞四口之家,
更進一步反映屋主對家庭的重視。
客廳頂上彎了一弧大角,
亦如攬著家人享受窗外世界知名的建築美景,
歲月長長短短,如能朝暮共享最是無價。
__
如果以一幅畫詮釋這個家,
基底是溫暖而明淨的淡白色畫布,
不同層次的暖木質調,如同畫筆描繪重心,
濃淡之間比例和諧,提升景深層次,
白底灰紋大理石添增些許冷峻。
如晝的光帶此起彼落畫龍點睛,
在不同角落灑下亮點。
空間設計表現了成熟穩重,
與屋主也就是畫家的內在性格相互輝映。
當人生境界提升至與大師名作為鄰,
一窗一景,都隨之昇華,
描繪成富有深度與故事的藝術品。
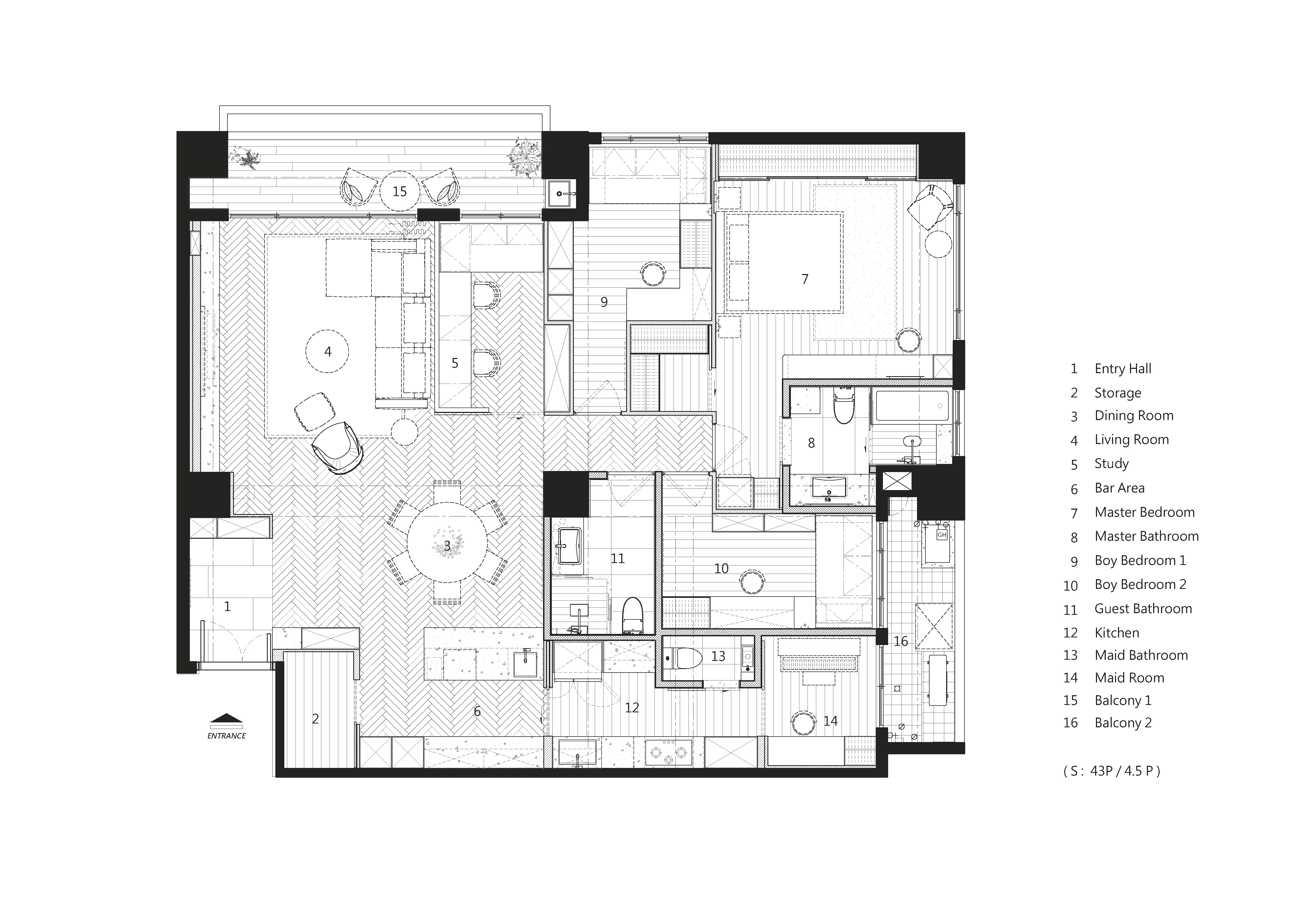
空間格局」43坪
玄關區、客廳區、餐廳、輕食區、熱炒區、獨立書房、客用廁、主臥室、主浴、小孩房、客浴
主要建材」
鋼刷木皮、烤漆門板、大理石、進口磁磚、人字拼木地板、鍍鈦鐵件、灰玻、系統櫃


